Sold STC
Guide Price £300,000

2 bed bungalow for sale in Portloe Road, Heald Green, Cheadle

Shortlist

Key features

  • Conservatory
  • Driveway
  • Enclosed Garden
  • Fitted Bathroom
  • Fitted Kitchen
  • Garage
  • Garden
  • Great Commuter Links
  • No Chain
  • South Facing Garden

Video

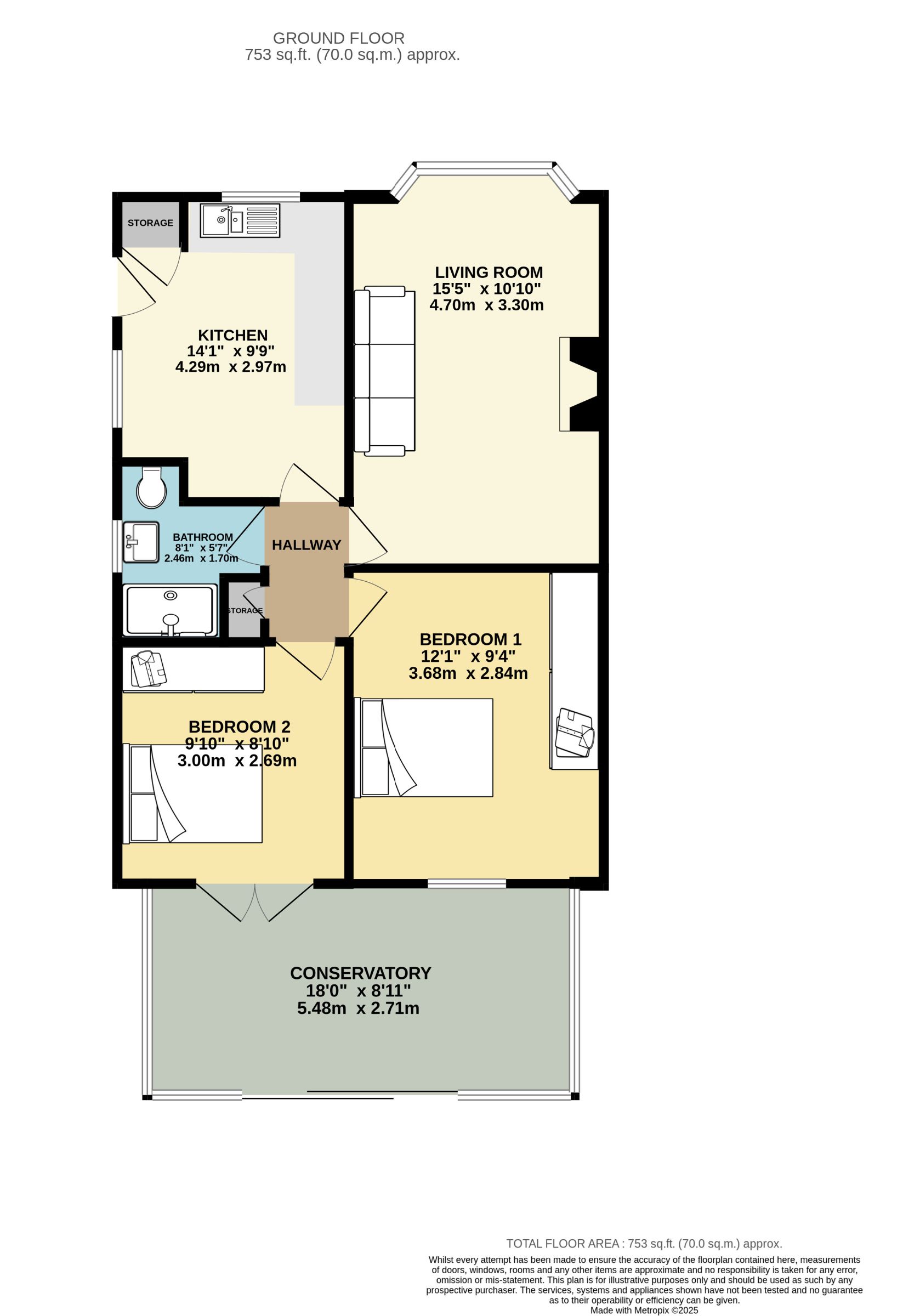
Portloe Road - a spacious semi-detached bungalow in a prime location, offered for sale with the benefit of no onward chain, ideally positioned on a quiet residential road just moments away from Heald Green village. This desirable location provides easy access to a variety of local shops, amenities and excellent transport links including the nearby train station with direct routes to Manchester City Centre.

The home opens directly into a well-equipped kitchen with a range of fitted units, space and plumbing for appliances, and a useful storage cupboard. A generously sized living room sits at the heart of the home, complete with fireplace.

From the central hallway, which includes an additional storage cupboard, you'll find two double bedrooms located at the rear of the property. Both benefitting from fitted wardrobes. The second bedroom opens into an impressive rear conservatory-an ideal additional reception room with beautiful views over the private south-facing garden.

The contemporary shower room comprises a walk-in shower cubicle, wash basin, and W.C.

Externally, the property offers a block-paved driveway, with double gates leading to the rear garden and detached garage, providing secure off-road parking. The rear garden is a true highlight, being south-facing and featuring a flagged patio area and a lawn, creating a peaceful and private outdoor space.

WHAT WE LOVE
The bungalow is the perfect opportunity for anyone looking to downsize without compromising on comfort or convenience. Thoughtfully maintained and beautifully presented, it's ready for you to move straight into. Boasting a south-facing garden, ideal for relaxing afternoons, gardening and entertaining this home offers a low-maintenance lifestyle with all the comfort and quality you'd expect - perfect for enjoying a simpler, more relaxed way of living.

THE AREA
Heald Green has a fantastic village community with great access to the surrouding villages of Didsbury, Gately, Northenden Timperley and Sale. For the commuter the M56 and M60 Motorway Network is a few minutes' drive and Manchester International Airport is less than a 10 minute drive.

NEED A MORTGAGE?
Don't worry, we can arrange for you to speak with our in- mortgage advisor to help you with any purchase.

Call Kirn Estates on 0161 945 4321 to book in a viewing today.

Council Tax Band: C
Tenure: Freehold
Parking options: Driveway, Garage
Garden details: Private Garden, Rear Garden


Living room w: 10' 10" x l: 15' 5" (w: 3.3m x l: 4.7m)


Kitchen w: 9' 9" x l: 14' 1" (w: 2.97m x l: 4.29m)


Bedroom 1 w: 9' 4" x l: 12' 1" (w: 2.84m x l: 3.68m)


Bedroom 2 w: 8' 10" x l: 9' 10" (w: 2.69m x l: 3m)


Bathroom w: 8' x l: 5' (w: 2.44m x l: 1.52m)


Conservatory w: 18' x l: 8' 11" (w: 5.49m x l: 2.72m)


Download brochure

Stamp duty due

Based on a sale price of £300,000 the total amount of stamp duty payable will be:

*

Last updated: The calculator has been updated to reflect changes in stamp duty following the Autumn Budget on 30th October 2024 for April 1st 2025 onwards.

* This value is based on the standard rate and not applicable to first-time buyers or buy-to-let / second home buyers.

Further details

  • New Listing: launched in the last 10 days
  • Status: Sold STC
  • Council tax band: C
  • Tenure: Freehold
  • Reference: 697685

Location